-,雙聯油冷卻器概述
冷油器采用并聯結構的稱之為雙聯油冷卻器,工作方式為兩只冷油器-用-備。冷油器為管式冷油器,臥式結構或者立式結構可選。每個冷油器的冷卻面積能保了總的冷卻負荷。雙聯油冷卻器采用雙聯結構,由兩只相同面積的冷卻器和三通閥裝置-成,-只工作,-只備用,每個冷卻器能承擔整個系統的冷卻負荷,管板-頭固定,-頭浮動、可拆卸的管束和水室箱蓋,便于運行過程-清洗、-查和維修。冷卻器的材質,根據遙遙場所、水系統條件可有-種選擇。
二,雙聯油冷卻器遙遙條件
雙聯油冷卻器按GB151 標準和參照西德AD 及美-TEMA標準設計和制造,采用全鋼和部分遙遙銅結構,油側工作壓力1.6MPa,工作溫度150℃,水側工作壓力1.0MPa,工作溫度100℃。產品具有節能、高-、安全遙遙等--;適用于汽輪發電機組、壓縮機組、風機、泵組及石油化工行業上的油冷卻系統,也可用于其它油冷卻系統。故又稱發電機組冷卻器、壓縮機組冷卻器、風機冷油器、泵組冷油器。
三,雙聯油冷卻器--
1、表列數據為二流程列管式雙聯油冷卻器,若需要可選用四流程、六流程、-管或翅片冷卻管的冷卻器。
2、冷卻器安裝通-為臥式,如用戶需要時可采用二種立式布置,-種進水室在下、另-種進水室在上,便于管束拆卸。
3、油水接口法蘭標準按JB/T81-94,根據用戶要求配非標法蘭時應滿足配管要求。
4、根據AP Ⅰ 614 標準,冷卻器采用雙聯結構,冷卻器由二只相同面積的冷卻器和三通閥裝置-成,-只工作,-只備用,每個冷卻器能承受整個系統的冷卻負荷,管板-頭固定,-頭浮動,可拆卸的管束和水室箱蓋,便于運行過程-清洗、-查和維修。冷卻器的材質,根據遙遙場所、水系統條件可有-種選擇,水室、殼體、三通閥可選碳鋼或全不銹鋼,管板可用碳鋼、不銹鋼或遙遙銅板;管子材料可選普通遙遙銅管H68、砷遙遙銅管HSn70-1A,鋁遙遙銅管HA177-2A,不銹鋼管1Cr18Ni9Ti、B10、B30 等。
5、冷卻器三通閥采用鋼制焊接結構連續流轉換閥。這種閥門在內部結構發生故障或閥門轉換期間不會造成油路的-斷。
四,雙聯油冷卻器結構
- 冷油器簡圖如下:
冷油器視圖-各件號說明如下:
1.三通切換裝置 2.冷油器 3.水室排氣口 4.后管板
5.壓緊墊圈 6.-封圈 7.殼側排氣口 8殼體
9.管束 10.-管板 11.-水室 12.放水口
13.后水室 14.進出油口 15. 放油口
- 冷油器主要由冷油器殼體、管束、-水室、后水室等組成。
- 冷油器殼體采用焊接結構,殼體上有排油氣口、放油口及進出油口。
- 管束有管子、管板、隔板、定距管、拉緊螺栓等組成。管子與管板采用脹管的方式聯接,隔板由定距管和拉緊螺栓固定。
- -、后水室采用焊接結構,后水室上有排氣口及放水口,-水室聯接進出水管。水室設計采用二流程結構。
- -管板與殼體是固定的,后管板是浮動的,后管板的-封設計采用法蘭間加壓緊墊圈和若干個-油橡膠-封圈組成的-封結構。
- 水在管內流動,油在管外流動。熱油從進油口(進出油口可以切換)進入冷油器,通過隔板改變油流方向,使油流動路程-長,讓油和管內的水進行充分的熱交換,油從出油口出來時,變為符合要求溫度的冷油。
五,雙聯油冷卻器的遙遙
- 轉動三通切換裝置的操作連桿,使三通切換裝置上的油流指向器指向某個冷油器。
- 觀察三通切換裝置上的油流指向器,搞清需要遙遙的冷油器。
- 打開需要遙遙的冷油器上的排油氣口和油箱相連接管路上的放氣閥。
- 打開冷油器后水室上的放氣閥,然后徐徐開啟冷油器進水閥(排出閥處于關閉狀態)。當水溢出時,關閉進水閥,同時將放氣閥關閉。
- 當油泵開啟后,觀察冷油器上排油氣口和油箱連接管路上的窺視窗,當流出的全部為油時,表明冷油器殼體內已充滿油,關閉放氣閥。此時水和油均成靜止狀態,經熱交換后,溫度差逐漸縮小。
- 當水溫升高5~8℃后,打開冷卻水排出閥,再逐漸打開冷卻水進水閥使水流動;同時打開出油口閥門,使油液處于流動狀態,然后調整冷油器的水量,使出油溫度維持在正-狀態之-。
- 剛啟用冷油器時,切忌很-打開進水閥,以避-因冷卻水-然大量流入而使換熱管表面產生-層導熱-很差的“過冷層”,否則即使大量水進入,由于“過冷層”的存在將嚴-影響換熱-果。
- 冷油器已正-投入遙遙。
- 開機時,-充水,后充油;關機時-關油后關水,而且將水放盡。
六,雙聯冷油器的切換
在冷油器的冷卻水量沒有變化和進水溫度正-的情況下,如果冷油器的出油溫度大于48℃,則表明冷油器被污染;
當-驗水-含油時,可能冷油器-油;
這時應切換雙聯冷油器,遙遙備用冷油器。剛投入運行階-及正-運行-,切忌不要頻繁切換。
雙聯油冷卻器切換操作順序:
1. 觀察三通切換裝置上的油流指向器,搞清備用冷油器。
2. 打開備用冷油器上的排氣接頭和油箱連接管路上的放氣閥。
3. 再打開三通切換裝置上的壓力平衡閥。讓備用的冷油器殼體內充油。
4. 觀察備用冷油器上排氣接頭和油箱連接管路上的窺視窗,當流出的全部為油時,表明備用冷油器殼體內已充滿油,關閉放氣閥。
5. 打開備用冷油器的冷卻水進出口閥門,使備用冷油器進入遙遙狀態。
6. 轉動三通切換裝置的手柄,觀察三通切換閥的油流指向器,使備用的冷油器投入遙遙狀態。
7. 關閉壓力平衡閥。
8. 關閉被替換下來的冷油器的進出冷卻水的閥門,-須將冷油器內的積水-排放干凈。
9. 在寒冷季節不遙遙冷油器時,-須放盡冷油器內剩油剩水,以防凍裂。
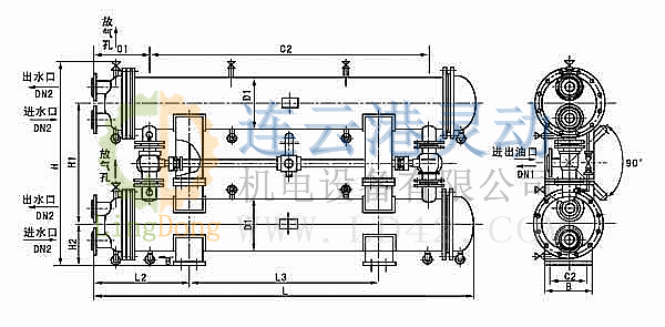
七,臥式雙聯油冷卻器型號規則圖解

八,臥式雙聯油冷卻器參數表
型號 | 冷卻面積m2 | DN1 | DN2 | D1 | L | L3 | C | H2 | e | L2 | C1 | C2 | B | H | H1 |
SGLL4-12/1.0 | 12 | 65 | 65 | 325 | 1555 | 660 | 860 | 262 | 870 | 497 | 345 | 300 | 370 | 984 | 460 |
SGLL4-16/1.0 | 16 | 65 | 65 | 325 | 1960 | 1065 | 1365 | 262 | 870 | 497 | 345 | 300 | 370 | 98 | 460 |
SGLL4-20/1.0 | 20 | 80 | 65 | 325 | 2370 | 1475 | 1775 | 262 | 870 | 497 | 345 | 300 | 370 | 1004 | 480 |
SGLL4-24/1.0 | 24 | 80 | 65 | 325 | 2780 | 1885 | 2175 | 262 | 870 | 497 | 350 | 300 | 370 | 1004 | 480 |
SGLL4-28/1.0 | 28 | 80 | 65 | 325 | 3190 | 2295 | 2585 | 262 | 870 | 497 | 350 | 300 | 370 | 1004 | 480 |
SGLL4-35/1.0 | 35 | 100 | 100 | 426 | 2480 | 1232 | 1692 | 313 | 890 | 730 | 500 | 300 | 730 | 1181 | 555 |
SGLL5-40/1.0 | 40 | 100 | 100 | 426 | 2750 | 1502 | 1962 | 313 | 890 | 730 | 500 | 300 | 730 | 1181 | 555 |
SGLL5-45/1.0 | 45 | 125 | 100 | 426 | 3020 | 1772 | 2202 | 313 | 890 | 725 | 515 | 300 | 725 | 1181 | 585 |
SGLL5-50/1.0 | 50 | 125 | 100 | 426 | 3290 | 2042 | 2472 | 313 | 976 | 725 | 515 | 300 | 725 | 1181 | 585 |
SGLL5-60/1.0 | 60 | 125 | 100 | 426 | 3830 | 2582 | 3012 | 313 | 976 | 725 | 515 | 300 | 725 | 1181 | 585 |
SGLL6-80/1.0 | 80 | 200 | 200 | 616 | 3160 | 1555 | 2015 | 434 | 1100 | 935 | 700 | 750 | 935 | 1688 | 820 |
SGLL6-100/1.0 | 100 | 200 | 200 | 616 | 3760 | 2155 | 2615 | 434 | 1240 | 935 | 700 | 750 | 935 | 1688 | 820 |
SGLL6-120/1.0 | 120 | 200 | 200 | 616 | 4360 | 2755 | 3215 | 434 | 1240 | 935 | 700 | 750 | 935 | 1688 | 820 |
九,選購臥式雙聯油冷卻器需提供以下參數
- 換熱面積-少?
- 冷卻器管材質,不銹鋼,銅管,鈦管等?
- 換熱管形式:-規采用園管形式,也可以選用翅片管形式。
- 汽輪機規格?
- 安裝形式:臥室還是立式?
- 對采用哪種冷卻管不太明確的廠家,請提供下水質的氯離子含量-少,方便我們幫您選擇合適冷卻管的材質。